_17598783571Kaml.jpg)
Lot 4 - Dinmore
Dinmore, Ipswich, QLD, 4303$ 1,055,490
Overview
Property ID: LA-18903
- Cashflow Positive
- Property Type
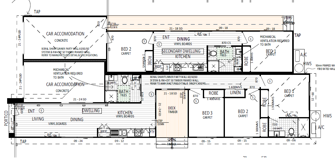
- 3+2
- Bedrooms
- 2+1
- Bathrooms
- 1+1
- Cars
- 184
Details
Updated on Oct 11, 2025 at 02:01 am
Property Type: | Cashflow Positive |
---|---|
Price: | $ 1,055,490 |
Land Price: | N/A |
Build Price: | N/A |
Gross Per Week: | $ 1,030 |
Gross Per Annum: | $ 53,560 |
Gross Yield: | 5.07% |
Capital Growth 12 Months: | 23.04% |
Capital Growth 10 Year Annualised: | 9.35% |
Vacancy Rate: | 0.56% |
Property Size: | 184 m2 |
Land Area: | 450 m2 |
---|---|
Bedrooms: | 3+2 |
Bathrooms: | 2+1 |
Parking: | 1+1 |
Title Status: | January 2026 |
Property ID: | 18903 |
SKU: | 1001 |
Description
*Please be advised that some lots/units may need confirmation of availability. Kindly ensure to check availability first by emailing or phoning us.*
Dinmore, located around 30 kilometres southwest of Brisbane’s CBD and about 10 minutes from Ipswich, is a small but strategically positioned suburb that blends a quiet residential lifestyle with excellent transport access. Historically one of the older suburbs in the Ipswich region, Dinmore has a modest housing mix of established homes and newer developments, appealing to families and commuters seeking affordability and convenience.
Local amenities in Dinmore are practical and reflect its smaller size. The suburb has local parks, community spaces, and nearby sporting facilities in adjoining suburbs. Residents also benefit from proximity to Ipswich’s extensive services, including medical centres, libraries, cultural venues, and recreational hubs. Riverlink Shopping Centre in North Ipswich and Redbank Plaza are close by, offering supermarkets, department stores, cinemas, and a wide variety of dining and retail options.
Education in Dinmore is supported by schools in neighbouring suburbs. Dinmore itself is close to Riverview State School and Bundamba State School for primary years, while Bundamba State Secondary College serves older students. Families can also access private schools in Ipswich, such as St Peter Claver College and Ipswich Girls’ Grammar School. Childcare centres are available in nearby suburbs, making it convenient for young families.
Transportation is one of Dinmore’s strongest features. Dinmore Train Station lies on both the Ipswich and Rosewood lines, providing frequent rail services into Brisbane CBD and Ipswich, which makes commuting straightforward. The suburb also sits at the junction of two major motorways—the Ipswich Motorway and the Cunningham Highway—offering excellent road connectivity to Brisbane, Ipswich, and further west to Toowoomba. Local bus routes provide additional links to surrounding suburbs and shopping precincts.
In summary, Dinmore is a small but well-located suburb that appeals to commuters and families seeking affordable living with outstanding transport connections. Its close proximity to Ipswich and Brisbane, combined with access to shopping, education, and community amenities, makes it a practical and convenient place to live while still offering a quieter suburban environment.
Disclaimer*
Reservation Requirements:
1. Completed EOI (Property Reservation form under Fusion CRM Online Forms)
2. Holding deposit receipt (amount TBA)
3. Copy of client's finance pre-approval letter/comfort letter from the broker
4. Copy of client's ID
All details shown have been provided by third parties, for full details and inclusions please refer to the land and building contracts.
Address
Open on Google MapsSimilar Listings
$ 102,440
8.53%
8.83%
2.15%
Lot 1146 - ROOMING - Acacia Ridge - Acacia Ridge
Acacia Ridge, Brisbane, QLD, 4110$ 106,080
8.17%
7.64%
0.90%
Lot 1148 - ROOMING - Lobe Street - Bald Hills
Bald Hills , Brisbane, QLD, 4036$ 29,640
4.30%
5.07%
1.62%
Lot 12 Duplex 1 - Russmussen - Townsville
Townsville, Townsville, QLD, 4810$ 23,400
3.66%
4.81%
13.43%
Lot 1251 - Ooranya Estate - Beveridge
Beveridge, Melbourne, VIC, 3753Sold Listings
$ 53,560
5.23%
8.43%
0.74%
Lot S75 Birdie Crescent, Gympie QLD
Gympie, Gympie, QLD, 4570$ 52,000
6.83%
6.27%
0.67%
Lot S79 Davis Crescent, Mildura VIC
Mildura, VIC, 3500$ 31,200
3.58%
6.40%
1.35%
Lot S204 Lilydale Court, Burpengary QLD (Unit 1)
Burpengary, Moreton Bay, QLD, 4505$ 53,560
5.41%
9.35%
0.56%
Lot S3 Claydon Street, Dinmore QLD
Ipswich, QLD, 4303ENQUIRE ABOUT THIS PROPERTY
Why Buy With Aus Investment Properties?
- Dedicated In-house Project Manager.
- High-yielding properties.
- Independent rental assessment.
- Full turnkey properties, 'Ready to Rent'.
- Brand new properties with builders warranty.
- High quality, highly specified properties.
- Tax and depreciation benefits from new properties.
- Buy direct from the builder.
- Investor or SMSF.

Search 1000'S Of Off-Market Investment Properties!

SQM Research is an investment research house that specialises in providing accurate research and data to financial institutions, investment professionals and investors.
Aus investment Properties has partnered with SQM Research to provide data across our site to assist investors in making an informed decision.
Capital Growth 12 months, measures the increase in a property’s value over the previous 12 months, indicating how much the investment has appreciated in that timeframe.
Capital Growth 10-year annualised, reflects the average annual increase in a property’s value over the last decade, smoothing out short-term fluctuations to show long-term appreciation trends.
Vacancy Rate, indicates the percentage of properties that are currently unoccupied in that postcode, It’s a key indicator for investors to assess the rental demand.
SMSF Property Investing, when investing inside your SMSF there are some restrictions on how you can purchase investment properties. We use the following information to help navigate the SMSF investment property options.
This property is a single-contract property suitable for an SMSF.