Lot S208 Oak Concourse, Narre Warren VIC

Narre Warren, Melbourne, VIC, 3805

$ 793,500

Narre Warren, Melbourne, VIC, 3805
Lot S208 Oak Concourse, Narre Warren VIC-0
Lot S208 Oak Concourse, Narre Warren VIC-1

Property Images

Lot S208 Oak Concourse, Narre Warren VIC-0 Lot S208 Oak Concourse, Narre Warren VIC-1

Overview

Property ID: LA-19260

  • SMSF Single Contract
  • Property Type
  • 4
  • Bedrooms
  • 3
  • Bathrooms
  • 2
  • Cars
  • 165

Details

Updated on Oct 22, 2025 at 02:15 pm

Property Type: SMSF Single Contract
Price: $ 793,500
Land Price: N/A
Build Price: N/A
Gross Per Week: $ TBA
Gross Per Annum: $ TBA
Gross Yield: TBA%
Capital Growth 12 Months: 2.23%
Capital Growth 10 Year Annualised: 6.39%
Vacancy Rate: 0.79%
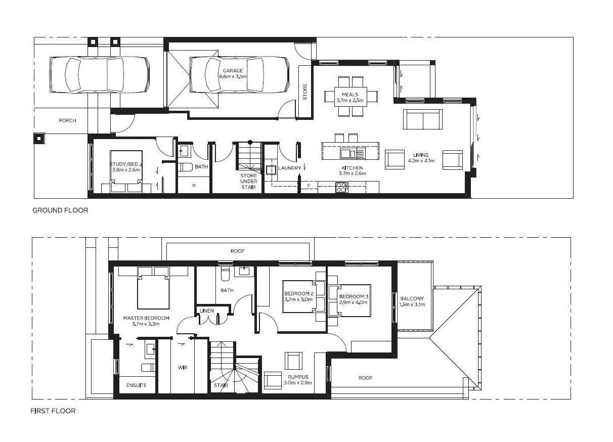
Property Size: 165 m2
Land Area: TBA m2
Bedrooms: 4
Bathrooms: 3
Parking: 2
Title Status: Titled
Property ID: 19260
SKU: 1015

Description

Discover the best of modern living with this Co-living in Narre Warren. Offering 4 bedrooms, 3 bathrooms and 2 car spaces, it has been designed for comfort, ease of living and long-term durability. From its thoughtful layout to its low-maintenance features, this property makes everyday living simple and rewarding. Perfect for investors, it also provides lifestyle appeal for those seeking a place to call home. It’s a versatile choice that ticks every box.


Suburb profile:

Narre Warren is a popular location in VIC, offering livability and ongoing growth potential. Residents benefit from access to schools, shops and transport, supporting both lifestyle and rental demand. The area’s amenities and planned development make Narre Warren attractive for investors and owner‑occupiers alike.


Inclusions:

  • Ready to move in!
  • Ducted Heating
  • Front and back landscaping
  • Colour concrete driveway
  • 20mm stone benchtop to kitchen
  • Fully Turnkey

Designed to perform in today’s rental market, this Co-living in Narre Warren combines reliable yield with capital appreciation potential. It’s a well-rounded opportunity that fits both short-term goals and long-term strategies. A solid investment you can depend on.

A co-living property is a type of shared accommodation that offers private bedrooms with ensuite bathrooms and communal spaces such as kitchens, living rooms, dining areas, laundry facilities and outdoor areas.

Co-living properties are designed to foster a sense of community, convenience and comfort among the residents, who can enjoy the benefits of having their own space as well as socialising with like-minded people.

A co-living property attracts tenants who are looking for an affordable, flexible and hassle-free living option that suits their lifestyle and needs.

Co-living tenants are typically young professionals, students, digital nomads, entrepreneurs, creatives and seniors who value convenience, connectivity and collaboration.

A co-living property offers benefits to an investor who is looking for a high-yield, low-risk and future-proof investment opportunity.

Co-living properties have a higher occupancy rate, lower vacancy rate and lower turnover rate than traditional rental properties, as they cater to the growing demand for affordable and flexible housing solutions in urban areas.

Co-living properties also have higher capital growth potential, as they are generally located in prime locations with access to transport, education, employment and entertainment hubs.

You can read more about Co-Living here: https://ausinvestmentproperties.com.au/blogs/co-living-the-future-of-australian-housing

Disclaimer*

All details shown have been provided by third parties, for full details and inclusions please refer to the land and building contracts.

Address Lot S208 Oak Concourse, Narre Warren VIC
City Melbourne
State VIC
Postcode 3805
Suburb Narre Warren

Similar Listings

  • $ 622,185
Gross Return
$ 24,960
Gross Yield
5.43%
Capital Growth
6.92%
Vacancy Rate
1.06%

Lot 534 - Uptown Estate - Shepparton - AUD 622,...

Shepparton , City of Greater Shepparton, VIC, 3630
  • 4 Bedrooms
  • 2 Bathrooms
  • 2Cars
  • $ 622,185
Gross Return
$ 24,960
Gross Yield
5.43%
Capital Growth
6.92%
Vacancy Rate
1.06%

Lot 535 - Uptown Estate - Shepparton - AUD 622,...

Shepparton , City of Greater Shepparton, VIC, 3630
  • 4 Bedrooms
  • 2 Bathrooms
  • 2Cars
  • $ 629,423
Gross Return
$ 24,960
Gross Yield
5.37%
Capital Growth
6.92%
Vacancy Rate
1.06%

Lot 536 - Uptown Estate - Shepparton

Shepparton , City of Greater Shepparton, VIC, 3630
  • 4 Bedrooms
  • 2 Bathrooms
  • 2Cars
  • $ 629,423
Gross Return
$ 24,960
Gross Yield
5.37%
Capital Growth
6.92%
Vacancy Rate
1.06%

Lot 535 - Uptown Estate - Shepparton

Shepparton , City of Greater Shepparton, VIC, 3630
  • 4 Bedrooms
  • 2 Bathrooms
  • 2Cars

Sold Listings

Featured
Co-Living
  • $ 804,200
Sold
Gross Return
$ TBA
Gross Yield
TBA%
Capital Growth
8.10%
Vacancy Rate
0.76%

Lot 101 5 Leaker Ave, Aldinga SA

Southern Suburbs, SA, 5173
  • 3 Bedrooms
  • 3 Bathrooms
  • 1Cars
Co-Living
Featured
Co-Living
  • $ 747,700
Sold
Gross Return
$ TBA
Gross Yield
TBA%
Capital Growth
5.65%
Vacancy Rate
0.91%

Lot 19 16 Sims Road, Mount Barker SA

Adelaide Hills, SA, 5251
  • 3 Bedrooms
  • 3 Bathrooms
  • 1Cars
Co-Living
Featured
SMSF Co-Living
  • $ 830,000
Sold
Gross Return
$ 49,816
Gross Yield
6.00%
Capital Growth
5.55%
Vacancy Rate
2.86%

Lot S1132 Springridge, Wallan VIC

Melbourne, VIC, 3756
  • 4 Bedrooms
  • 3 Bathrooms
  • 2Cars
SMSF Single Contract
Featured
SMSF Co-Living
  • $ 735,000
Sold
Gross Return
$ 44,096
Gross Yield
5.99%
Capital Growth
5.55%
Vacancy Rate
2.86%

Lot S1335 Springridge, Wallan VIC

Melbourne, VIC, 3756
  • 4 Bedrooms
  • 3 Bathrooms
  • 1Cars
SMSF Single Contract

ENQUIRE ABOUT THIS PROPERTY

Why Buy With Aus Investment Properties?

  • Dedicated In-house Project Manager.
  • High-yielding properties.
  • Independent rental assessment.
  • Full turnkey properties, 'Ready to Rent'.
  • Brand new properties with builders warranty.
  • High quality, highly specified properties.
  • Tax and depreciation benefits from new properties.
  • Buy direct from the builder.
  • Investor or SMSF.
Buy Property Banner

Search 1000'S Of Off-Market Investment Properties!

SQM Research Logo

SQM Research is an investment research house that specialises in providing accurate research and data to financial institutions, investment professionals and investors.

Aus investment Properties has partnered with SQM Research to provide data across our site to assist investors in making an informed decision.

Capital Growth 12 months, measures the increase in a property’s value over the previous 12 months, indicating how much the investment has appreciated in that timeframe.

Capital Growth 10-year annualised, reflects the average annual increase in a property’s value over the last decade, smoothing out short-term fluctuations to show long-term appreciation trends.

Vacancy Rate, indicates the percentage of properties that are currently unoccupied in that postcode, It’s a key indicator for investors to assess the rental demand.

SMSF Property Investing, when investing inside your SMSF there are some restrictions on how you can purchase investment properties. We use the following information to help navigate the SMSF investment property options.

This property is a single-contract property suitable for an SMSF.

Compare listings

Compare