_17598783571Kaml.jpg)
Overview
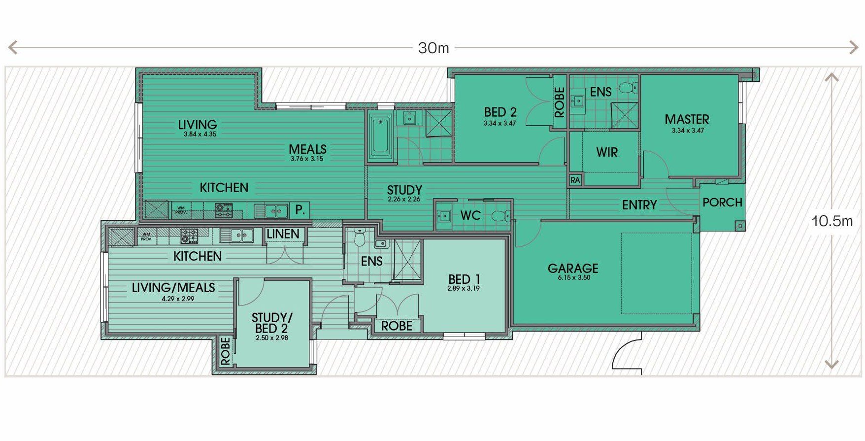
Property ID: LA-18655
- Dual Key
- Property Type
- 2+2
- Bedrooms
- 2+1
- Bathrooms
- 1
- Cars
- 188
Details
Updated on Oct 08, 2025 at 11:06 am
Property Type: | Dual Key |
---|---|
Price: | $ 841,300 |
Land Price: | $ 384,000 |
Build Price: | $ 457,300 |
Gross Per Week: | $ 930 |
Gross Per Annum: | $ 48,360 |
Gross Yield: | 5.75% |
Capital Growth 12 Months: | -0.78% |
Capital Growth 10 Year Annualised: | 6.29% |
Vacancy Rate: | 2.14% |
Property Size: | 188 m2 |
Land Area: | 448 m2 |
---|---|
Bedrooms: | 2+2 |
Bathrooms: | 2+1 |
Parking: | 1 |
Title Status: | Q3-25 |
Property ID: | 18655 |
SKU: | 1066 |
Description
Located in Lara, this Dual Key is more than just a home — it’s a smart investment opportunity. With 2+2 bedrooms, 2+1 bathrooms and 1 car spaces, it delivers functional design with modern living in mind. Investors will appreciate its strong yield potential, while residents will enjoy the comfort and convenience it provides every day. Set within a growth corridor, it combines lifestyle benefits with future financial returns. A property that works for you today and tomorrow.
Suburb profile:
Lara sits between Melbourne and Geelong, making it ideal for commuters and families wanting affordable homes with excellent transport connections. With schools, retail, and recreational facilities nearby, Lara offers a convenient and balanced lifestyle. The suburb continues to benefit from infrastructure upgrades and population growth, creating strong demand in both the rental and owner-occupier markets.
Inclusions:
- Full turnkey package
- Architecturally designed home
Site Inclusions - Site Works, Foundations & Connections:
- Engineered concrete slab foundation
- Termite control treatment provided
- Connection of all essential services including water, gas, electricity, sewer, and stormwater
Internal Inclusions:
- 2590mm ceiling height throughout
- 20mm stone benchtops to kitchen, bathrooms, and ensuite
- Flooring combination of laminate timber, carpet, and tiles to wet areas
- Semi-framed shower screens and polished-edge mirrors in bathrooms
- Block-out roller blinds to all windows
External Inclusions:
- High-quality roofing with sarking
- Durable concrete driveway
- Garage with remote-control sectional door
- Flyscreens to all opening windows
Landscaping Inclusions:
- Complete front and rear landscaping package with turf and garden beds
- 1800mm high timber paling fencing to side and rear boundaries, including side gate
- Water-saving drip irrigation system with timer
- Modern letterbox and fold-out clothesline
Electrical Inclusions:
- Energy-efficient LED downlights throughout
- Fibre optic ready for NBN connection
- Security alarm system
- Hardwired smoke detectors with battery backup
Appliance Inclusions:
- European 600mm electric oven
- European 600mm induction cooktop
- European undermount rangehood
- European freestanding dishwasher
Furniture Pack Inclusions:
- A comprehensive furniture package can be arranged for an additional cost to complete this investment.
Energy Efficiency:
- Minimum 7-Star energy rating
- Solar PV system installed
- Efficient heat pump electric hot water service
- Gas ducted heating
- Reverse cycle split system air conditioner
This property is built with long-term growth in mind, offering security, value and strong returns. It provides confidence for investors looking to build wealth while ensuring everyday comfort for residents. A reliable choice in today’s market.
Dual Key Properties stand as a prime choice for investors seeking innovative solutions to maximize their returns.
These properties are ingeniously designed to include two separate living spaces within one structure, allowing for dual rental income streams from a single investment.
This setup not only enhances the property's rental yield but also offers flexibility in tenant demographics, ranging from young professionals to small families.
The distinct separation of spaces ensures privacy while maintaining the potential for a communal lifestyle, catering to the modern tenant's desire for adaptable living arrangements.
Disclaimer*
All details shown have been provided by third parties, for full details and inclusions please refer to the land and building contracts.
Address
Open on Google MapsSimilar Listings
$ 48,360
5.72%
6.29%
2.14%
Lot 1004 Sugar Glider Avenue, Lara VIC
Lara, City of Greater Geelong, VIC, 3212$ TBA
TBA%
6.38%
1.66%
Lot 8421 Langford Street, Werribee VIC
Werribee, City of Wyndham, VIC, 3030$ 48,360
5.72%
6.29%
2.14%
Lot 1008 Sugar Glider Avenue, Lara VIC
Lara, City of Greater Geelong, VIC, 3212$ 45,760
4.88%
5.99%
0.78%
Lot 1930 Mercury Road, Sunbury VIC
Sunbury, City of Hume, VIC, 3429Sold Listings
$ TBA
TBA%
4.73%
2.46%
Lot 69 Devesha Drive, Armstrong Grove VIC
Geelong, VIC, 3217$ TBA
TBA%
4.73%
2.46%
Lot 67 Devesha Drive, Armstrong Grove VIC
Geelong, VIC, 3217$ TBA
TBA%
4.73%
2.46%
Lot 75 Devesha Drive, Armstrong Grove VIC
Geelong, VIC, 3217$ TBA
TBA%
4.73%
2.46%
Lot 64 Devesha Drive, Armstrong Grove VIC
Geelong, VIC, 3217ENQUIRE ABOUT THIS PROPERTY
Why Buy With Aus Investment Properties?
- Dedicated In-house Project Manager.
- High-yielding properties.
- Independent rental assessment.
- Full turnkey properties, 'Ready to Rent'.
- Brand new properties with builders warranty.
- High quality, highly specified properties.
- Tax and depreciation benefits from new properties.
- Buy direct from the builder.
- Investor or SMSF.

Search 1000'S Of Off-Market Investment Properties!

SQM Research is an investment research house that specialises in providing accurate research and data to financial institutions, investment professionals and investors.
Aus investment Properties has partnered with SQM Research to provide data across our site to assist investors in making an informed decision.
Capital Growth 12 months, measures the increase in a property’s value over the previous 12 months, indicating how much the investment has appreciated in that timeframe.
Capital Growth 10-year annualised, reflects the average annual increase in a property’s value over the last decade, smoothing out short-term fluctuations to show long-term appreciation trends.
Vacancy Rate, indicates the percentage of properties that are currently unoccupied in that postcode, It’s a key indicator for investors to assess the rental demand.
SMSF Property Investing, when investing inside your SMSF there are some restrictions on how you can purchase investment properties. We use the following information to help navigate the SMSF investment property options.
This property is a single-contract property suitable for an SMSF.