Lot 11717 Warralily Armstrong Creek, Armstrong Creek VIC

Armstrong Creek, Geelong, VIC, 3217

$ 856,483

Armstrong Creek, Geelong, VIC, 3217
Lot 11717 Warralily Armstrong Creek, Armstrong Creek VIC-0
Lot 11717 Warralily Armstrong Creek, Armstrong Creek VIC-1

Property Images

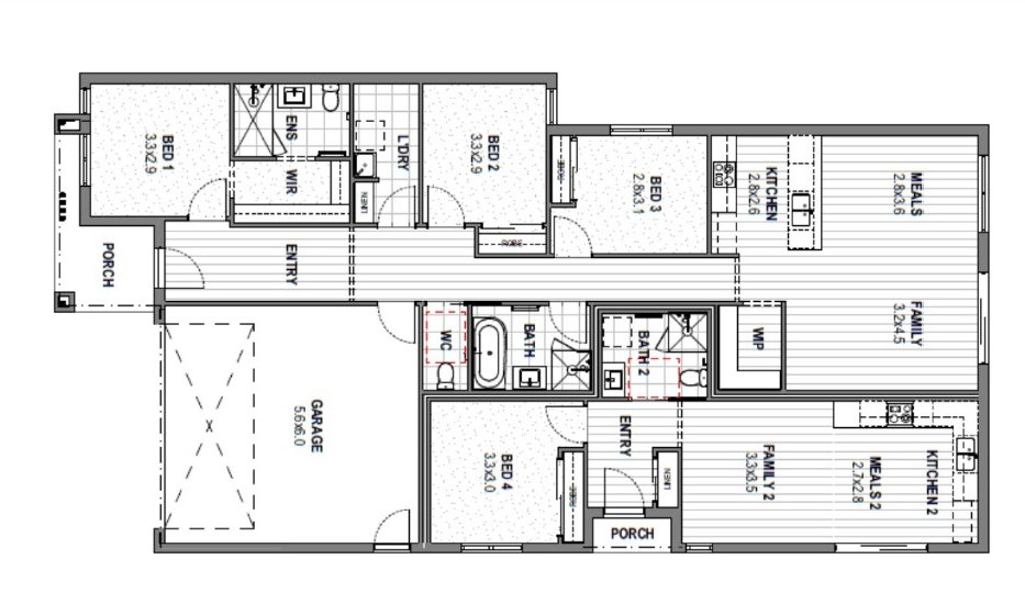
Lot 11717 Warralily Armstrong Creek, Armstrong Creek VIC-0 Lot 11717 Warralily Armstrong Creek, Armstrong Creek VIC-1

Overview

Property ID: LA-22146

  • Dual Key
  • Property Type
  • 3+1
  • Bedrooms
  • 2+1
  • Bathrooms
  • 1+1
  • Cars
  • 222

Details

Updated on Apr 13, 2026 at 10:23 am

Property Type: Dual Key
Secondary Type: N/A
Price: $ 856,483
Land Price: $ 402,000
Build Price: $ 454,483
Gross Per Week: $ 865*
Gross Per Annum: $ 44,980
Gross Yield: 5.25%
Capital Growth 12 Months: 0.15%
Capital Growth 10 Year Annualised: 4.73%
Vacancy Rate: 2.46%
Property Size: 222 m2
Land Area: 400 m2
Bedrooms: 3+1
Bathrooms: 2+1
Parking: 1+1
Title Status: 'Titled
Property ID: 22146
SKU: 1030

Description

This Dual Key in Armstrong Creek presents a rare opportunity to secure a modern, high-growth investment. Featuring 3+1 bedrooms, 2+1 bathrooms and 1+1 car space/s, it blends lifestyle comfort with strong rental appeal. Every detail has been designed to combine style with practicality, making it attractive for both tenants and future buyers. Positioned in one of Australia's fastest-growing areas, this property is built for long-term value and immediate results. A standout choice for anyone seeking both security and growth.


Suburb profile:

Armstrong Creek is one of the fastest-growing suburbs in the Geelong region, strategically located between Geelong CBD and the Surf Coast. The area is known for its master-planned estates, modern infrastructure, and strong population growth attracting both families and investors. Residents benefit from access to schools, shopping centres, parklands, and convenient transport links to both Geelong and Melbourne. Continued development and proximity to coastal lifestyle destinations make Armstrong Creek a highly desirable location for long-term property investment.


Inclusions:

  • Fixed priced full Turn-Key home and land package
  • 7 star energy rating
  • Double glazed windows throughout
  • 2590mm ceiling heights to ground floor
  • 20mm Caesarstone to kitchen bathroom and ensuite
  • Vinyl sliding doors to robes
  • Timber flooring and carpet throughout
  • White LED downlights throughout
  • Premium chrome tapware with extended warranty
  • Lifetime structural guarantee

Designed to perform in today's rental market, this Dual Key in Armstrong Creek combines reliable yield with capital appreciation potential. It's a well-rounded opportunity that fits both short-term goals and long-term strategies. A solid investment you can depend on.

Dual Key Properties stand as a prime choice for investors seeking innovative solutions to maximize their returns.

These properties are ingeniously designed to include two separate living spaces within one structure, allowing for dual rental income streams from a single investment.

This setup not only enhances the property's rental yield but also offers flexibility in tenant demographics, ranging from young professionals to small families.

The distinct separation of spaces ensures privacy while maintaining the potential for a communal lifestyle, catering to the modern tenant's desire for adaptable living arrangements.

Disclaimer*

All details shown have been provided by third parties, for full details and inclusions please refer to the land and building contracts.

Address Lot 11717 Warralily Armstrong Creek, Armstrong Creek VIC
City Geelong
State VIC
Postcode 3217
Suburb Armstrong Creek

Similar Listings

Featured
Dual Key
  • $ 801,799
Gross Return
$ 40,560
Gross Yield
5.06%
Capital Growth
4.99%
Vacancy Rate
1.44%

Lot 322 Kossuth Street, Sebastopol VIC

Sebastopol, Ballarat, VIC, 3356
  • 3+1 Bedrooms
  • 2+1 Bathrooms
  • 2Cars
Dual Key
Featured
Dual Key
  • $ 959,327
Gross Return
$ 44,980
Gross Yield
4.69%
Capital Growth
4.73%
Vacancy Rate
2.46%

Lot 832 Armstrong Waters, Armstrong Creek VIC

Armstrong Creek, Geelong, VIC, 3217
  • 3+1 Bedrooms
  • 2+1 Bathrooms
  • 1+1Cars
Dual Key
Featured
Dual Key
  • $ 853,544
Gross Return
$ 44,980
Gross Yield
5.27%
Capital Growth
4.73%
Vacancy Rate
2.46%

Lot 9722 Warralily Armstrong Creek, Armstrong C...

Armstrong Creek, Geelong, VIC, 3217
  • 3+1 Bedrooms
  • 2+1 Bathrooms
  • 1+1Cars
Dual Key
Featured
Dual Key
  • $ 924,431
Gross Return
$ 44,980
Gross Yield
4.87%
Capital Growth
4.73%
Vacancy Rate
2.46%

Lot 836 Armstrong Waters, Armstrong Creek VIC

Armstrong Creek, Geelong, VIC, 3217
  • 3+1 Bedrooms
  • 2+1 Bathrooms
  • 1+1Cars
Dual Key

Sold Listings

Featured
Dual Key SMSF
  • $ 1,089,000
Sold
Gross Return
$ 50,440
Gross Yield
4.63%
Capital Growth
8.09%
Vacancy Rate
1.00%

Lot S99 51 Ratnam Road, Redbank Plains QLD

Brisbane, QLD, 4301
  • 3+1 Bedrooms
  • 2.5+1 Bathrooms
  • 1+1Cars
Dual Key
Featured
Dual Key
  • $ 785,900
Sold
Gross Return
$ 37,960
Gross Yield
4.83%
Capital Growth
6.35%
Vacancy Rate
1.81%

Lot 1306 Leon St, Kilmore VIC

Kilmore, Mitchell, VIC, 3764
  • 3+1 Bedrooms
  • 2+1 Bathrooms
  • 2Cars
Dual Key
Featured
Dual Key
  • $ 836,100
Sold
Gross Return
$ 43,368
Gross Yield
5.19%
Capital Growth
4.73%
Vacancy Rate
2.46%

Lot 1410 Rechenburg Blvd, Armstrong Creek VIC

Armstrong Creek, Greater Geelong, VIC, 3217
  • 3+1 Bedrooms
  • 2+1 Bathrooms
  • 2Cars
Dual Key
Featured
Dual Key
  • $ 836,100
Sold
Gross Return
$ 43,368
Gross Yield
5.19%
Capital Growth
4.73%
Vacancy Rate
2.46%

Lot 1409 Rechenburg Blvd, Armstrong Creek VIC

Armstrong Creek, Greater Geelong, VIC, 3217
  • 3+1 Bedrooms
  • 2+1 Bathrooms
  • 2Cars
Dual Key

ENQUIRE ABOUT THIS PROPERTY

Why Buy With Aus Investment Properties?

  • Dedicated In-house Project Manager.
  • High-yielding properties.
  • Independent rental assessment.
  • Full turnkey properties, 'Ready to Rent'.
  • Brand new properties with builders warranty.
  • High quality, highly specified properties.
  • Tax and depreciation benefits from new properties.
  • Buy direct from the builder.
  • Investor or SMSF.
Buy Property Banner

Search 1000'S Of Off-Market Investment Properties!

Capital Growth 12 months, measures the increase in a property’s value over the previous 12 months, indicating how much the investment has appreciated in that timeframe.

Capital Growth 10-year annualised, reflects the average annual increase in a property’s value over the last decade, smoothing out short-term fluctuations to show long-term appreciation trends.

Vacancy Rate, indicates the percentage of properties that are currently unoccupied in that postcode, It’s a key indicator for investors to assess the rental demand.

SMSF Property Investing, when investing inside your SMSF there are some restrictions on how you can purchase investment properties. We use the following information to help navigate the SMSF investment property options.

This property is a single-contract property suitable for an SMSF.

SMSF Single Contract

Compare listings

Compare